Maison
€ 649.854

Broekstraat , 1745 Opwijk

Description Ref.: 7579432

Maison neuve économe en énergie avec jardin et garage



Journée portes ouvertes : samedi 28 février de 13h00 à 15h00. Vous êtes les bienvenus pour visiter la maison et poser toutes vos questions.

Découvrez ce magnifique projet neuf à Opwijk, commune verte et paisible à proximité de Bruxelles. Située Broekstraat, la maison est à distance de marche et de vélo des écoles, commerces et de la gare.

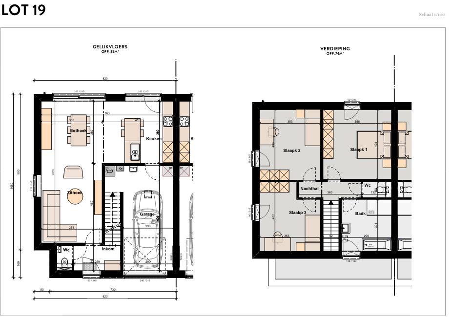
Elle comprend un hall d’entrée avec WC invités, un séjour lumineux avec cuisine ouverte équipée et un accès direct au garage. À l’étage : trois chambres, une salle de bain équipée, un WC séparé et un accès au grenier de rangement. Jardin orienté sud-ouest.

Le rez-de-chaussée est équipé du chauffage au sol, l’étage de radiateurs. Grâce aux panneaux solaires et au système de ventilation C, le E-peil maximal est de 20, donnant droit à une réduction jusqu’à 50 % sur la taxe foncière pendant 5 ans (jusqu’à 100 % avec panneaux supplémentaires).

Prix clé-sur-porte tout compris : terrain, notaire, droits d’enregistrement, TVA, architecte et coordination sécurité.

Action : terrasse, allée et peinture blanche offertes à l’achat.


Votre contact

Plus d'info ref: 7579432
contact

Détails de la propriété

Financier

Prix
€ 649.853,94
Sous régime TVA
Oui
Disponible
à la livraison

Localisation géographique

Environnement
Résidentiel
École à proximité
647m
Commerces à proximité
519m
Transports publics à proximité
383m

Bâtiment

Surface habitable
159,00 m²
Façades
3
Année de construction
2026
État
Neuf

Terrain

Superficie terrain
603,00 m²
Jardin
Oui

Garages / parking

Garage
1

Aménagement

Cuisine
Super-équipée
Salle de bain type
Tout confort
Toilettes
2

Confort

Meublé
Non
Vidéophone
Oui

énergie

Double vitrage
Oui
Certificat d'électricité
Oui, conforme
Type de chauffage
Gaz (chau. centr.)
Chauffage
Individuel

Techniques

Électricité
Oui
Câbles téléphoniques
Oui
Télévision par câble
Oui
Egouts
Oui
Gaz
Oui
Eau
Oui

Information urbanistique

Affectation
Non communiqué
Permis de bâtir
Oui
Permis de lotir
Non communiqué
Droit de préemption
Non communiqué
Intimation en justice
Non
Jugement en cours
Non
Servitude
Non

Plus d'info pour cette propriété

Merci pour votre message, nous vous contacterons dès que possible.
Il y avait un problème lors de l'envoi du formulaire, s'il vous plaît essayer à nouveau.
(*) Veuillez remplir les champs obligatoires.

Downloads